TRS – Tagueamento de Plantas

Modificado em Qua, 27 Dez, 2023 na (o) 3:28 PM

TRS – Tagueamento de Plantas 

 

Considerações:  


- Arquivo sempre em WORD.  

Caso venha em PDF temos que converter para Word.  

 

Sistema TRS 


Administrativo V1 > Contratos > Adicionar Documento > Preencher Campos* > Vincular o produto** 

 

*Tipo: Plantas 

Nome do Documento: Colocamos normalmente o nome do arquivo que o cliente enviou 

Ordem do Documento:  

 

**É possível vincular 1 ou mais produtos.  



 

Salvar (No fim da página).


 

Caso as plantas sejam diferentes por unidade, temos que vinculá-las à unidade também.  


 


Abrirá a seguinte janela:

 

Interface gráfica do usuário 
Descrição gerada automaticamente 

Salvar (No fim da página).



Após ao lado esquerdo, no Glossário, preencha a busca de TAG com: Dados  

Aparecerá algumas opções, clique no lápis da opção {{dados_proponentes}} 

Abrirá um campo para colocarmos os detalhes.  

Exemplo:  


CLIENTE: {{nome_cliente}}; 

E-MAIL: {{cliente_email}}; 

UNIDADE: {{imovel_numero_unidade}}  PAVIMENTO: {{num_andar_imovel}}; 

DATA: {{data_assinatura}}  TELEFONE: {{tipo_telefone_cliente}}{{telefone_cliente}}; 

ASSINATURA: {{assinatura}}; 

 

Salvar (No fim da página). 


 

Interface gráfica do usuário, Texto, Aplicativo 
Descrição gerada automaticamente 

Após copie a TAG {{dados_proponentes}} e cole no Word da Planta***.  


O próximo passo é salvar o Word e subi-lo para o sistema, através do botão:  


 


Adicione o arquivo e após salve.  


 

***WORD – Planta  

 

Colar a TAG no campo correspondente para que aqueles dados que colocamos nos detalhes sejam preenchidos automaticamente.  



Tagueamento de imagens: 


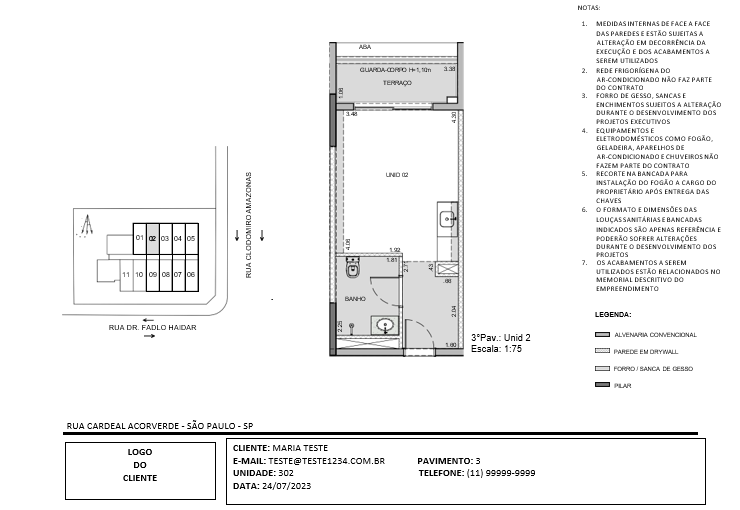
- Planta Original  


Diagrama, Desenho técnico 
Descrição gerada automaticamente 

 

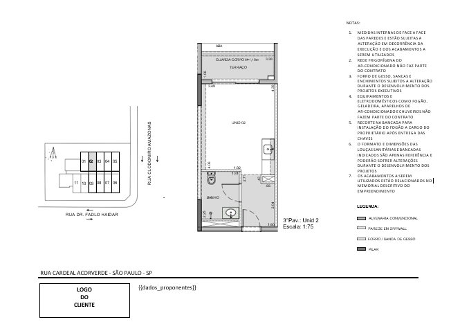
A ideia da TAG é preencher esses campos ao lado do logo utilizando as TAGs customizáveis, como por exemplo  {{dados_proponentes}} 

 

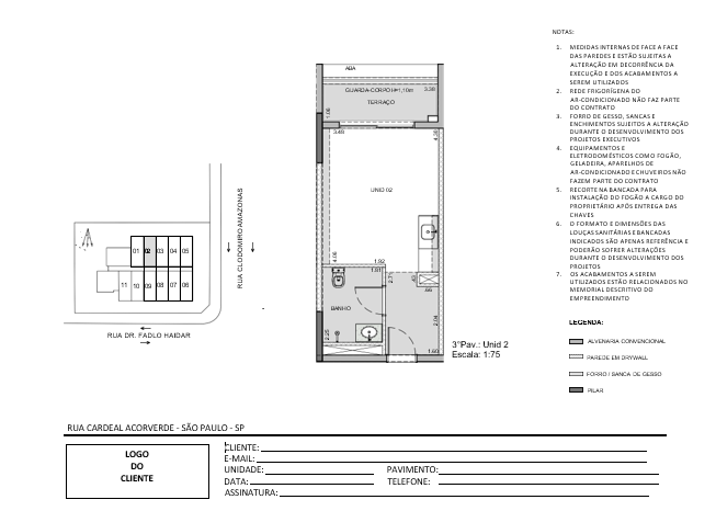
- Como a planta fica após tagueamento 


Diagrama, Desenho técnico 
Descrição gerada automaticamente 

 

 

- Resultado (Versão para o cliente final) 


 

 

Este artigo foi útil?

Que bom!

Obrigado pelo seu feedback

Desculpe! Não conseguimos ajudar você

Obrigado pelo seu feedback

Deixe-nos saber como podemos melhorar este artigo!

Selecione pelo menos um dos motivos
A verificação do CAPTCHA é obrigatória.

Feedback enviado

Agradecemos seu esforço e tentaremos corrigir o artigo